/
【外観】
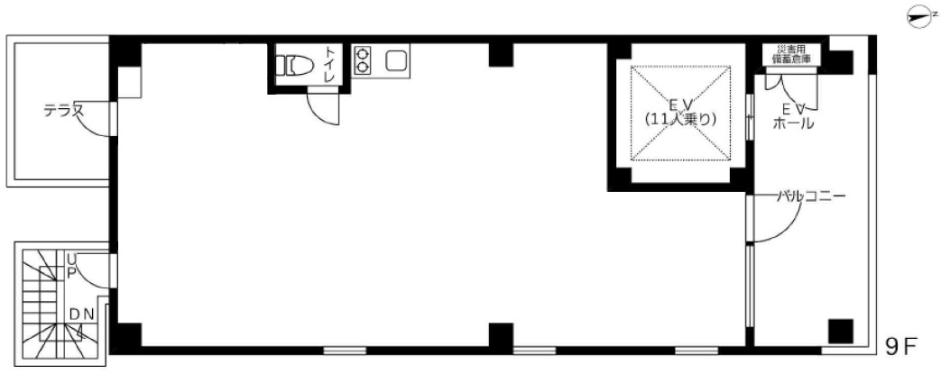
- 物件名
- PRIME・A 9F
- 価格
- 要相談(要相談/坪)
- 管理/共益費
- -
- 築年月
- 2024年8月(築1年)
- 設備条件
-
- 駐車場/月額
- -/-
- 取引態様
- 一般媒介
PRIME・A 9Fの基本情報
PRIME・A 9Fの詳細情報
PRIME・A 9Fで募集中の物件
近隣の物件
PRIME・A 9F







